熱線電話
13040700003
手機掃碼訪問
①針對干燥行業、鍋爐行業、清洗行業、涂裝行業、食品烘干行業配套而研發的耐高溫離心風機。
②輸送的氣體為空氣或其他不自燃、不自爆、無纏繞性、對人體無害、對鋼鐵材料無腐蝕的氣體。也可為各行業輸送無腐蝕性、不自燃、不含粘性物質的熱氣、蒸汽、煙氣。其它性能相近的也可以選用,但輸送介質的溫度不得超過它的額定溫度范圍。
③氣體內不能有粘性物質,所含的塵土及硬質顆粒不大于150mg/m3,如果含塵量大,在風機前必須加裝準備就緒不低于85%的除塵裝置,降低進入風機的煙氣含塵量,有利于提高風機壽命。
①此類風機有兩種形式。從電機一側正視,葉輪順時針旋轉的稱為右旋風機,以“右”表示;葉輪逆時針旋轉的稱為左旋風機,以“左”表示。
②風機的出口位置,以機殼的出風口角度表示。風機出廠時均做成一種可調型式,使用單位根據要求在安裝成所需要的位置。出風口位置調整范圍是0°-255°,間隔是45°。傳動方式均為“A”式直聯傳動。
①風機主要由葉輪、機殼、進風口、電機、連接器、散熱風葉等部分組成。
②進風口采用收斂流線型減渦形式,氣流損失較小,風機的工作效率高。
③TSN-A型葉輪采用多翼式單進離心葉輪,用優質的鍍鋅板或者冷軋鋼板制成,葉片依據空氣動力原理設計。TSN-C型葉輪由10個后傾機翼型葉片、曲線形前盤和平板后盤組成。材料用強度高、耐用性好的優質鋼板制造,并經嚴格的動靜平衡校正。空氣性能良好,效率高,運轉平穩。
④風機機殼與電機以金屬鑄件安裝連接,電機軸頭上安裝散熱楓葉,金屬鑄件的外壁開設進、出水管接頭,對金屬鑄件與軸頭進行降溫,確保電機在高溫下正常運行。
⑤其他機采用特殊高溫電機,風機流體部分采用耐溫材料,降溫結構性可靠。相比其它鍋爐引風機,TSN-C型結構簡單,維護方便,性價比高等優點。
| 類 型 | 機 號 | 功 率 | 轉 速 | 流 量 | 全 壓 |
| 高速型 | (TSN-) | (Kw) | (r/min) | (m3/h) | (Pa) |
| C1 | 1.1 | 2900 | 1131-2356 | 828-504 | |
| C2 | 1.5 | 2900 | 1688-3517 | 1082-659 | |
| C3 | 3 | 2900 | 2664-5268 | 1315-823 | |
| C4 | 4 | 2900 | 4012-7419 | 1678-1100 | |
| C5 | 5.5 | 2900 | 5712-10563 | 2123-1392 | |
| 低速型 | D1 | 1.1 | 2900 | 1332-2634 | 329-206 |
| D2 | 1.1 | 1450 | 2006-3710 | 420-275 | |
| D3 | 1.1 | 1450 | 2856-5282 | 531-348 | |
| D4 | 2.2 | 1450 | 3864-7727 | 664-421 | |
| D5 | 3 | 1450 | 5429-10857 | 833-528 | |
| D6 | 4 | 1450 | 6677-13353 | 1139-724 | |
| D7 | 5.5 | 1450 | 7729-15458 | 1265-80 | |
| D8 | 7.5 | 1450 | 12676-20513 | 1572-1168 |


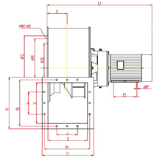
| 型號 | A | B | C | D | E | F | G | H | I | J | K | L |
| C1 | 561 | 187 | 196 | 125 | 80 | 455 | 256 | 230 | 196 | 156 | 184 | 224 |
| C2 | 637 | 213 | 224 | 140 | 90 | 519 | 284 | 258 | 224 | 184 | 216 | 256 |
| C3 | 714 | 239.5 | 249 | 160 | 100 | 584 | 312 | 286 | 252 | 192 | 228 | 288 |
| C4 | 789 | 265 | 280 | 190 | 112 | 647 | 340 | 314 | 280 | 220 | 261 | 320 |
| C5 | 885 | 298 | 315 | 216 | 132 | 728 | 375 | 349 | 315 | 235 | 300 | 360 |
| D2 | 789 | 265 | 280 | 140 | 90 | 647 | 340 | 314 | 280 | 220 | 261 | 320 |
| D3 | 885 | 298 | 315 | 140 | 90 | 728 | 375 | 349 | 315 | 235 | 300 | 360 |
| D4 | 981 | 331 | 350 | 160 | 100 | 809 | 410 | 384 | 350 | 290 | 339 | 400 |
| D5 | 1111 | 373 | 387 | 160 | 100 | 908 | 475 | 440 | 400 | / | / | 460 |
| D6 | 1183 | 396 | 420 | 190 | 112 | 969 | 500 | 460 | 420 | / | / | 480 |
| D7 | 1247 | 419 | 441 | 216 | 132 | 1028 | 521 | 480 | 441 | / | / | 504 |
| D8 | 1371 | 462 | 489 | 216 | 137 | 1129 | 570 | 534 | 490 | 430 | 460 | 560 |
| 型 號 | M | N | O | P | Q | R | S | T | U | |||
| C1 | 258 | 284 | 100 | 10 | 280 | 306 | 322 | 101 | 547 | |||
| C2 | 291 | 316 | 100 | 10 | 320 | 350 | 364 | 115 | 590 | |||
| C3 | 322 | 348 | 140 | 12 | 360 | 394 | 416 | 129 | 678 | |||
| C4 | 354 | 380 | 140 | 12 | 400 | 436 | 460 | 143 | 726 | |||
| C5 | 394 | 420 | 140 | 12 | 450 | 490 | 510 | 160.5 | 681 | |||
| D2 | 354 | 380 | 100 | 10 | 400 | 430 | 460 | 143 | 646 | |||
| D3 | 394 | 420 | 100 | 10 | 450 | 489 | 510 | 160.5 | 681 | |||
| D4 | 434 | 460 | 140 | 12 | 500 | 550 | 570 | 178 | 776 | |||
| D5 | 500 | 535 | 140 | 12 | 560 | 585 | 610 | 201 | 820 | |||
| D6 | 520 | 560 | 140 | 12 | 600 | 640 | 676 | 210 | 860 | |||
| D7 | 546 | 584 | 140 | 12 | 630 | 680 | 710 | 224 | 937.3 | |||
| D8 | 604 | 640 | 178 | 12 | 700 | 750 | 780 | 247 | 1001 |

品質包期為一年,終生維修。
在質保期內,我方會在接到用戶通知后4-6小時內作出報修響應,并在某24-72小時內免費提供維修服務,調整或更換有缺陷零部件或設備。在保修期間,根據用戶需要,如需要到現場進行維修的只收取工本費。為用戶提供分析系統的升級服務。
當客戶在設備出現問題或故障后需要尋求幫助,首先可以通過熱線電話或網絡請求幫助和指導,客戶服務部在確認客戶的服務請求后,將安排技術人員在規定的時間內通過電話幫助客戶進行故障定位,并提交解決方案,終指導客戶解決問題或排除設備故障。
客戶在使用設備時遇到疑難或者設備出現不正常狀態,通過電話或傳真向公司尋求技術支持和幫助,客戶服務部在確認客戶的請求后,如果不能通過熱線電話服務解決設備的技術故障,在經過雙方商議后確定需要進行現場故障排除的情況下,客戶服務部指派工程師在承諾的時間內赴現場分析故障原因,制定故障排除方案,并終排除故障。
工程師在完成現場服務后,應針對本次故障出現的原因和故障排除方法對客戶進行現場培訓,同事對客戶再使用過程中遇到的問題進行技術交流,以便客戶以后能夠獨立排除類似的設備故障。
在節假日(國家法定節假日)期間,除繼續開通服務熱線外,安排服務工程師值班,使客戶在設備使用過程中出現問題時能夠及時得到服務支持,為客戶提供周到體貼的服務。

浙江省金華市金東區孝順鎮低田工業區三伍廠內